In Ontario, outdoor spaces are not finished in summer. They are decided months earlier.
Landscape design is where structure, materials, drainage, and lifestyle get resolved before timelines tighten and product availability starts steering the project. When that planning is done properly, construction becomes execution, not improvisation.
If the goal is to use the space by summer, design needs to start when winter begins, not when the snow melts.
Why Landscape Design Starts Long Before Construction in Ontario
Ontario landscape projects leave little room for last-minute decisions. Drainage, approvals, climate conditions, and a short build season all affect how a project performs once it’s built. Starting design early keeps those decisions controlled and intentional.
Early planning helps resolve:
- Grades and drainage before excavation
- Material selection based on performance
- Permits before timelines tighten
- Construction windows ahead of peak season
When design starts too close to construction, decisions shift on site. That often affects circulation, lighting placement, and material transitions. These compromises may not be obvious right away, but they tend to show up later as higher maintenance or spaces that never quite function as planned.
2026 Landscape Design Trends We’re Building Into Ontario Homes
By the time landscape trends show up in finished backyards, the critical decisions behind them have already been made during design. In Ontario, materials, elevations, lighting, and drainage must be resolved early, which is why the 2026 trends we design into homes reflect real performance, year-round use, and long-term durability rather than surface-level updates.
Floating Steps with Recessed Lighting
Floating steps are used to resolve elevation changes without closing off views or interrupting the visual flow of a landscape. They create a sense of openness while still clearly defining movement between levels.
In Ontario, this detail must be engineered, not styled. Snow cover, moisture, and early darkness mean steps need consistent edge definition and reliable visibility. Recessed lighting provides that clarity without introducing bulky fixtures or glare, making the feature functional long after sunset and through shoulder seasons.
| Where It Works Best | Design Decisions Resolved Early |
|---|---|
| Primary circulation paths between zones | Step depth and riser height appropriate for winter use |
| Transitions from patio to garden or pool areas | Lighting placement protected from moisture and ice |
| Sloped sites where grade changes must feel intentional | Material transitions at grade changes |
Precision Tip: If lighting is not planned during the design phase, floating steps often lose their visibility and safety advantage once construction begins.
Café Mocha and Creamy Neutral Colour Palettes
Warm neutral palettes are replacing cooler greys across modern Ontario landscapes. Café mocha, soft beige, and creamy stone tones add depth while maintaining a calm, architectural feel that works across both contemporary and transitional homes.
These tones perform better in Ontario conditions. They conceal salt residue, seasonal debris, and minor surface wear more effectively than cooler or high-contrast finishes, allowing materials to age evenly instead of highlighting imperfections over time.
| Where It Works Best | Design Decisions Resolved Early |
|---|---|
| Large patio surfaces and pool decks | Coordinating colour tones across adjacent materials |
| Vertical walls and architectural features | Balancing warmth with surrounding hardscape finishes |
| Properties with layered hardscape zones | Avoiding mismatched substitutions later in the build |
Precision Tip: Colour palettes should be resolved across all major surfaces during design, not adjusted mid-build based on material availability.
Tumbled Limestone Cladding for Texture and Depth
Tumbled limestone introduces texture and variation where smooth surfaces can feel flat or overly refined. Its softened edges and natural colour shifts add depth without overpowering surrounding materials.
In cold climates, this texture provides a practical advantage. Tumbled limestone disguises weathering, salt exposure, and surface marks that are unavoidable in winter-facing applications, allowing vertical surfaces to maintain visual consistency year-round.
| Where It Works Best | Design Decisions Resolved Early |
|---|---|
| Cabanas and outdoor structures | Selecting stone thickness and fastening methods |
| Retaining walls and raised planters | Coordinating transitions with adjacent materials |
| Entry features and focal walls | Integrating lighting without disrupting texture |
Precision Tip: Tumbled limestone performs best when specified early, allowing lighting, detailing, and adjacent materials to be designed around its texture rather than forced afterward.
Smooth Architectural Concrete Surfaces
Smooth architectural concrete is used to create continuity across patios, walkways, and structural elements. Its refined finish allows large surfaces to read cleanly, giving outdoor spaces a modern, composed foundation rather than a patchwork of materials.
In Ontario, smooth concrete must be specified carefully. Finish type, joint spacing, and drainage detailing all influence how it performs through freeze–thaw cycles and seasonal moisture. When designed correctly, it delivers durability without sacrificing visual restraint.
| Where It Works Best | Design Decisions Resolved Early |
|---|---|
| Patios and primary gathering areas | Surface finish suitable for winter traction |
| Walkways and circulation corridors | Control joint placement and spacing |
| Integrated steps and retaining elements | Drainage slopes and edge detailing |
Precision Tip: Smooth concrete performs best when finish, joints, and drainage are coordinated as one system during design, not adjusted during the pour.
Beech Hedging for Perimeter Privacy
Beech hedging provides privacy without creating visual heaviness. Unlike solid fencing, it defines boundaries while maintaining a natural rhythm that softens the overall landscape.
For GTA properties, beech hedging offers a year-round advantage. It retains dried foliage through winter, preserving privacy even when deciduous plants are dormant. When properly spaced and oriented, it also integrates well with drainage and snow management.
| Where It Works Best | Design Decisions Resolved Early |
|---|---|
| Property perimeters and rear boundaries | Spacing and mature growth allowances |
| Along pool and patio edges | Relationship to hardscape and drainage |
| Transitions between neighbouring properties | Snow load and winter exposure planning |
Precision Tip: Hedging should be planned for mature size and winter presence, not just initial appearance at installation.
Folding Glass Screens for Cabanas
Folding glass screens extend the usability of cabanas without compromising openness. They allow outdoor structures to adapt to weather conditions while maintaining uninterrupted views when fully opened.
In Ontario, this flexibility is essential. Wind, rain, and shoulder-season temperatures can limit outdoor use unless enclosure options are integrated thoughtfully. Folding glass systems provide protection when needed while preserving light and airflow during warmer months.
| Where It Works Best | Design Decisions Resolved Early |
|---|---|
| Cabanas and covered seating areas | Structural support for glass systems |
| Poolside lounges and dining zones | Drainage thresholds and track placement |
| Four-season outdoor living spaces | Weather sealing and thermal performance |
Precision Tip: Glass screens must be designed into the structure itself. Retrofitting them later often compromises both performance and aesthetics.
Vertical Water Features
Vertical water features introduce movement and sound without consuming valuable ground space. Unlike horizontal features that spread across a footprint, vertical elements create a focal point while keeping circulation and gathering areas open.
In Ontario landscapes, vertical water features are easier to manage seasonally. They can be designed with controlled splash zones, simplified winterization, and integrated drainage that reduces freeze–thaw stress compared to shallow basins or expansive water planes.
| Where It Works Best | Design Decisions Resolved Early |
|---|---|
| Feature walls near patios or seating zones | Water delivery and drainage integration |
| Entry sequences and visual termini | Winter shutoff and access planning |
| Poolside focal areas without deck intrusion | Splash control and material compatibility |
Precision Tip: Vertical water features perform best when water movement, drainage, and winterization are designed as a single system, not layered in afterward.
Shou Sugi Ban and Thermally Modified Wood Decks
Shou Sugi Ban and thermally modified woods offer a natural alternative to synthetic decking while delivering improved durability. These materials bring warmth and authenticity that composites often lack, especially in design-forward landscapes.
For Ontario conditions, thermal modification improves dimensional stability and resistance to moisture without chemical treatments. When properly detailed, these woods handle seasonal movement and weather exposure while developing a controlled, intentional patina over time.
| Where It Works Best | Design Decisions Resolved Early |
|---|---|
| Platform decks and outdoor living zones | Board orientation and fastening methods |
| Pool surrounds and transition areas | Moisture management and ventilation |
| Elevated decks with architectural intent | Allowances for movement and expansion |
Precision Tip: Natural wood decking succeeds when ventilation, drainage, and fastening are resolved during design, not left to field adjustment.
Terrazzo Tiles and Slabs
Terrazzo introduces refined texture and visual depth through controlled aggregate variation. It offers a balance between smooth modern surfaces and material character, making it well suited to contemporary outdoor spaces.
In Ontario, exterior terrazzo must be specified carefully. Slip resistance, frost-rated substrates, and proper detailing are critical to long-term performance. When designed correctly, terrazzo provides a durable, low-maintenance surface that holds its appearance through seasonal changes.
| Where It Works Best | Design Decisions Resolved Early |
|---|---|
| Covered patios and sheltered walkways | Slip resistance and surface finish |
| Cabanas and outdoor rooms | Substrate preparation and drainage |
| Feature areas requiring visual distinction | Aggregate size and colour consistency |
Precision Tip: Terrazzo should only be used outdoors when substrate, drainage, and finish specifications are resolved upfront.
Light-Coloured Porcelain Tiles and Slabs
Light-coloured porcelain tiles and slabs create brightness and visual openness across patios and pool decks. Their consistent finish and large-format sizing support clean, architectural layouts with minimal visual interruption.
In Ontario climates, porcelain excels when frost-rated and properly installed. It resists moisture absorption, minimizes staining, and maintains colour stability through freeze–thaw cycles when paired with correct base preparation and joint detailing.
| Where It Works Best | Design Decisions Resolved Early |
|---|---|
| Pool decks and sun-exposed patios | Slip resistance and glare management |
| Walkways and circulation zones | Joint spacing and expansion control |
| Contemporary outdoor living areas | Base construction and drainage design |
Precision Tip: Porcelain performs best outdoors when slab thickness, base preparation, and joint detailing are engineered together during design.
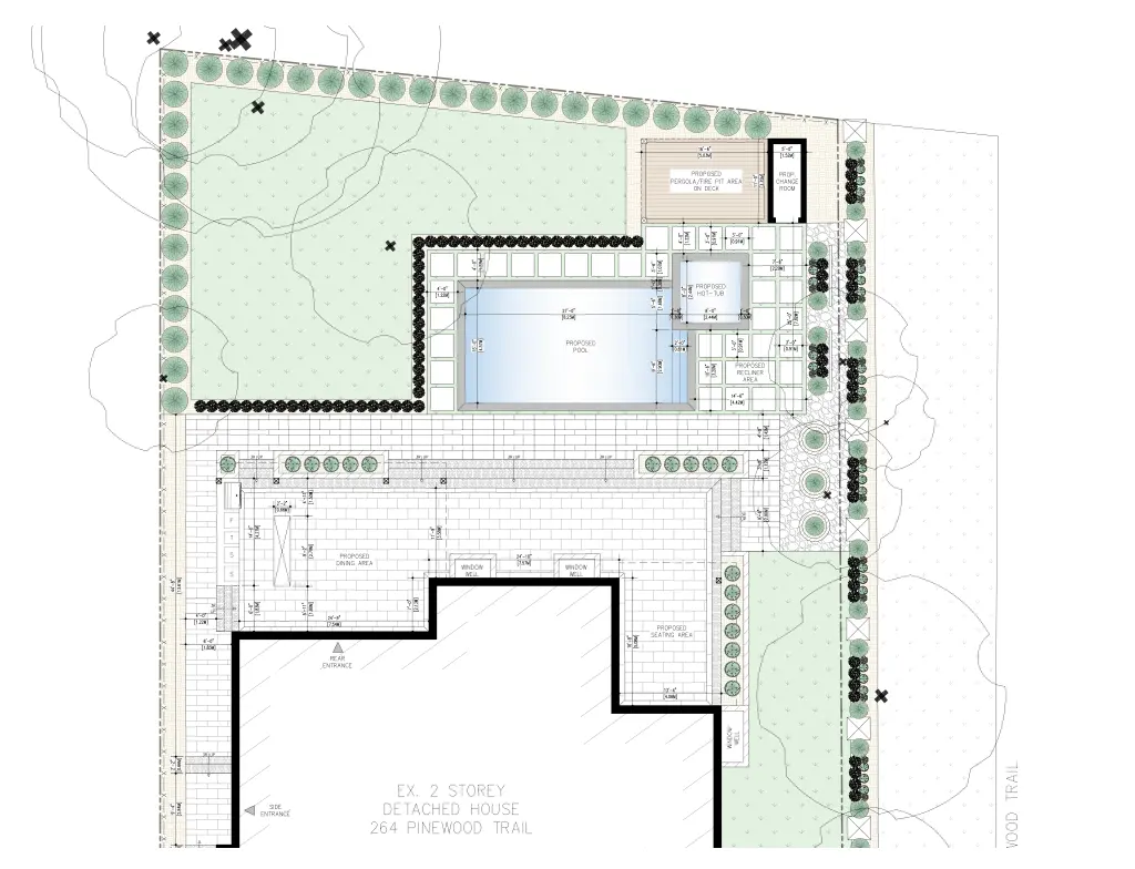
The Precision Landscaping Landscape Design Process
Our Landscape Design work resolves layout, materials, drainage, and approvals before construction begins. This allows projects to move forward with clarity rather than correction. The process mirrors how our work is executed in the field and prevents rushed decisions that often compromise long-term performance.
Discover & Diagnose: Site, Sun, Drainage, and Lifestyle
Every project begins with understanding the property itself. Grading, drainage paths, sun exposure, access points, and how the space is used across seasons are assessed early because they determine circulation, privacy, and long-term durability before materials are selected. When Gardens and other softscape elements are designed in context rather than added later, they work with natural drainage and sun patterns instead of creating future maintenance issues.
Concept & Create: Layout, Flow, and Material Direction
This is where the design takes form. Zones for movement, gathering, and privacy are defined, and materials are selected together so the space reads as one cohesive environment rather than a collection of features.
Key relationships resolved at this stage include:
- How Hardscaping transitions between elevations and zones
- Where Deck Installation supports grade changes and outdoor living areas
- How structures like Cabanas anchor the layout without blocking light or views
Resolving these elements early keeps the design buildable and intentional, not layered or reactive.
Visualise & Refine: 2D Plans and Photoreal 3D Renderings
The approved concept is translated into scaled 2D plans and photorealistic 3D renderings so layout, materials, elevations, and lighting are fully resolved before construction begins. This removes guesswork, prevents mid-build changes, and ensures decisions are made with clarity rather than assumption.
Specify & Permit: Buildable Details and Municipal Approvals
With the design approved, construction details and permit requirements are finalized. Structural specifications, elevations, and materials are resolved so execution is clear and coordinated, and projects involving Deck Installation or enclosed Cabanas are permitted early to avoid seasonal delays. This ensures the design is fully build-ready within Ontario regulations.
Design + Build: Why One Integrated Team Matters
Precision Landscaping operates as one integrated design-build team. This approach avoids the disconnect that often occurs when designs are handed off to separate contractors, keeping intent, detailing, and execution aligned. With one team responsible for both Landscape Design and Landscaping, timelines stay tighter, decisions remain clear, and accountability stays with a single partner from concept to completion.
What Fails First When Landscape Design Is Rushed
When the Landscape Design phase is compressed or delayed, decisions that should be resolved on paper are pushed into construction. Layouts are adjusted in the field. Materials are substituted based on availability. Coordination issues are solved reactively instead of intentionally.
The first failures tend to follow a predictable pattern:
- Circulation paths feel tight or awkward once built
- Elevation changes require last-minute fixes in Hardscaping
- Drainage details are simplified to keep work moving
- Lighting is added after the fact, prioritizing convenience over visibility and safety
Trends Only Work When They’re Designed for Ontario’s Climate
Design trends are easy to copy visually but harder to execute well in Ontario. Without climate-specific planning, materials and layouts that work in milder regions often age poorly under freeze–thaw cycles, moisture, and winter wear. This is where Landscape Design becomes critical. Trends must be adapted, not copied. Elevations need to shed water properly. Materials must tolerate temperature swings. Details must be engineered for long-term use rather than first impressions.
When trends are filtered through Ontario conditions, they stop being decorative choices and start becoming durable design solutions.
Pinterest Inspiration vs Performance-Based Design
Inspiration platforms are excellent for identifying style preferences. They are unreliable for construction logic.
Most reference images are photographed immediately after completion, before weather, settlement, and seasonal use reveal how a space actually performs. What looks clean online may hide drainage shortcuts, undersized transitions, or materials unsuited to Ontario conditions.
Performance-based design starts with how a space will be used and how it will age. Trends are then adapted through proper detailing, grading, and Hardscaping coordination so they remain functional years after installation.
At Precision Landscaping, trends are evaluated against real build conditions, not visual popularity. The result is outdoor spaces that still work when the novelty wears off.
What’s Included in a Professional Landscape Design Plan
A professional landscape design plan is not a concept sketch. It is a build-ready roadmap that aligns layout, materials, drainage, and approvals before construction begins. Each component is developed to remove uncertainty during the build phase and protect long-term performance in Ontario conditions.
Core Design Deliverables
A complete Landscape Design plan typically includes:
- Site analysis covering grades, drainage, sun exposure, and access
- Scaled 2D layout drawings for hardscape, softscape, and structures
- Material and finish selections coordinated across the entire space
- Planting layouts designed for climate performance and seasonal balance
- Structural and elevation details where required
- Permit-ready drawings for decks, cabanas, walls, and enclosed features
These deliverables ensure construction follows a clear plan rather than field interpretation.
Frequently Asked Questions About Landscape Design in Ontario
Landscape design often raises practical questions around timing, cost, performance, and long-term value, especially in Ontario’s climate. Below are clear, experience-based answers to the questions homeowners ask most when planning an outdoor project.
These responses reflect how landscape projects are actually designed and built, not just how they look at completion.
-
Yes. Winter is often the most strategic time to begin the Landscape Design process. Site analysis, layout planning, material selection, and permit preparation can all move forward without construction pressure. Projects designed in winter are typically ready to build as soon as conditions allow.
-
Most residential design timelines range from two to six weeks, depending on scope and complexity. Projects involving pools, structural elements, or municipal approvals may require additional coordination. Starting early prevents compressed decisions and rushed revisions.
-
Trends themselves do not trigger permits. Structures do. Features like decks, cabanas, retaining walls, and certain water elements may require approvals. When these are addressed during design, timelines remain controlled and predictable.
-
A design-build team aligns planning and construction under one structure. Designers understand build realities. Builders execute from drawings developed with real construction knowledge. This reduces miscommunication, change orders, and scheduling conflicts while improving accountability.
-
They can be when designed properly. Step depth, riser consistency, drainage, and integrated lighting must be resolved during design. Recessed lighting and defined edges significantly improve visibility in low light and shoulder seasons.
-
High-quality exterior porcelain is dense and non-porous, which makes it resistant to staining and freeze–thaw damage. Proper base preparation and edge detailing are critical to prevent movement and moisture-related issues.
-
Thermally modified wood offers dimensional stability and a natural appearance that many homeowners prefer. Composite decking offers lower maintenance. The right choice depends on aesthetic goals, maintenance expectations, and how the space will be used.
-
Beech hedging performs well in Ontario when planted and spaced correctly. It provides seasonal privacy and retains dried foliage through winter, offering structure and screening even after leaf drop.
-
Not necessarily. Proper pump access, basin sizing, and winterization planning determine long-term maintenance. Vertical water elements often integrate more cleanly into compact spaces than horizontal features.
-
They extend seasonal usability but are not substitutes for insulated, heated structures. Folding systems protect from wind and light precipitation while maintaining views. Proper detailing ensures smooth operation over time.
-
Design investments typically range from $1,500 to $5,000+, depending on scope and feature integration. Larger properties or projects including pools, structures, and complex grading fall toward the higher end. Early design often reduces costly mid-build changes.
-
Projects without a structured design phase often encounter layout revisions, drainage corrections, or material substitutions during construction. These adjustments increase cost and reduce efficiency. Design resolves these variables before excavation begins.
Ready to Plan Now and Enjoy Your Outdoor Space This Summer?
In Ontario, outdoor spaces that perform well in summer are decided long before construction begins. Starting your Landscape Design early allows materials, drainage, permits, and scheduling to be resolved before peak season pressure. Contact Precision Landscaping to begin a design process built for Ontario conditions and long-term performance.
