Explore industry-leading architectural design and engineering services for outdoor spaces in Toronto and the GTA. At Precision Landscaping, we specialize in crafting innovative, high-end outdoor solutions that combine beauty, functionality, and structural precision. Whether you're transforming a luxury residential estate, planning a
Think beyond traditional landscaping. Imagine your outdoor space enhanced with architecturally inspired features
that elevate its beauty and functionality. If you're looking to maximize your property's potential, increase its
long-term value, or create a sophisticated, functional environment, our architectural design and engineering team is
ready to turn your vision into reality.
We focus on analyzing your site, creating custom designs, and incorporating advanced engineering techniques to
ensure every element is both stunning and structurally sound. Whether it's a modern rooftop retreat, an elegant
courtyard, or a multi-level terrace, we manage every detail of the project while collaborating closely with you to
meet your expectations.
With over two decades of experience delivering luxury outdoor spaces and complex custom projects in Toronto and the
GTA, we are passionate about bringing your architectural design vision to life. Our focus on tailored solutions,
innovative design, and meticulous attention to detail ensures every project reflects your unique lifestyle and
preferences.
When you choose Precision Landscaping for your architectural design and engineering project, you can expect top-tier
service, transparent communication, and designs built to stand the test of time. We utilize state-of-the-art 2D and
3D design software—including Dynascape, SketchUp, Lumion, UVision, and CAD—to provide the most accurate
visualizations, allowing you to experience your project before it's built.
By working with a multidisciplinary team of architects, engineers, and construction specialists, Precision
Landscaping simplifies the entire process. Your project is designed and executed by a single contractor, ensuring
seamless coordination, fewer delays, and clear communication every step of the way.
Our architectural design and engineering services focus on blending aesthetics with structural performance. We offer innovative solutions for residential, commercial, and custom new-build projects, each tailored to meet the unique requirements of complex outdoor spaces.
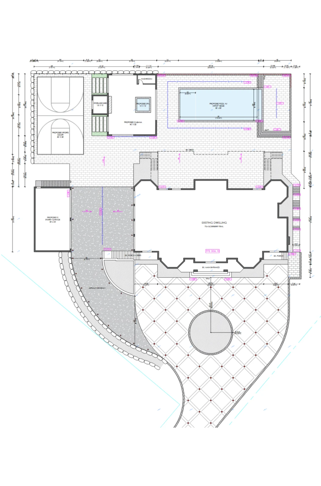
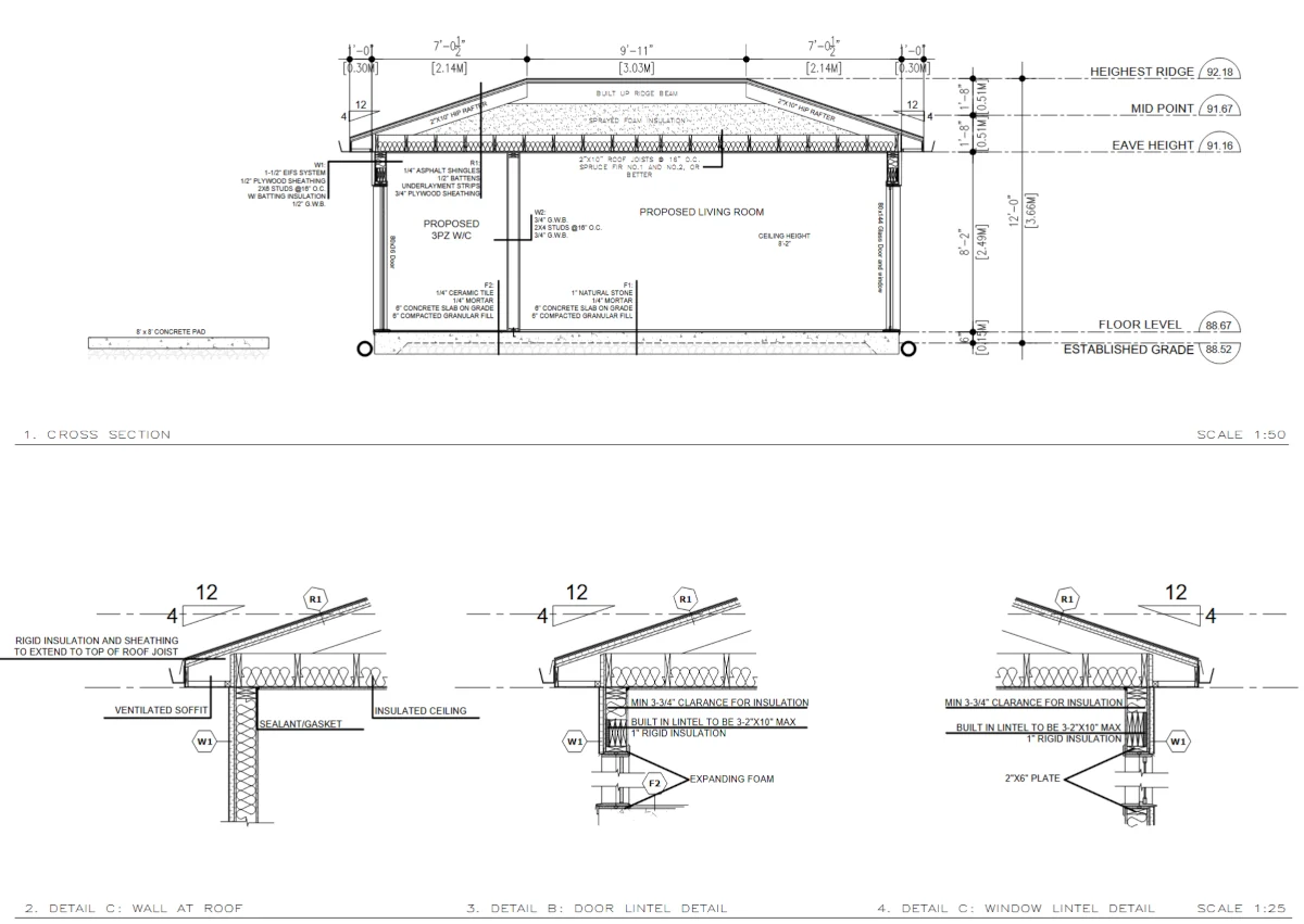
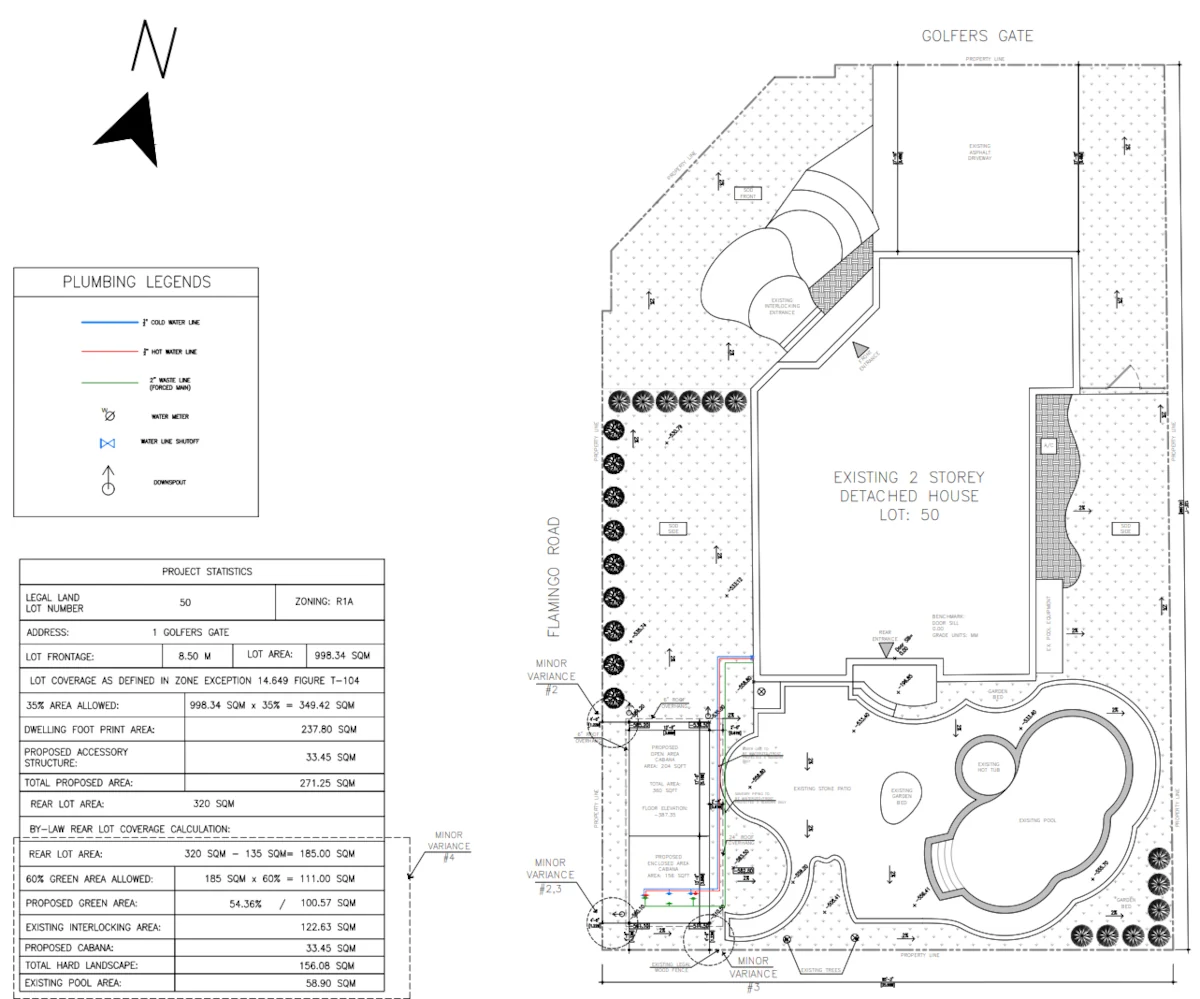
We design and build structurally sound hardscapes that enhance your outdoor environment's beauty while ensuring long-term stability. From retaining walls and multi-level patios to custom steps and walkways, our designs combine functionality and visual appeal.
Elevate your urban space with a custom rooftop garden or green space. These tranquil environments improve air quality, reduce urban heat, and offer a peaceful retreat. Perfect for residential buildings and commercial developments, rooftop gardens can include water features, seating areas, and custom lighting.
Add shade, style, and function to your outdoor space with custom pergolas, pavilions, and outdoor kitchens. Our structures are designed to integrate seamlessly with the surrounding landscape and meet your specific needs—offering year-round enjoyment.
Visit our Pergolas and Outdoor Kitchens pages to learn more.
Water management is crucial for large-scale outdoor projects. Our team integrates advanced drainage solutions, permeable pavers, and custom water features to ensure proper water flow and prevent flooding. Functional meets beautiful when these elements are seamlessly woven into your landscape.
We work with high-performance materials such as architectural concrete, natural stone, porcelain, and stainless steel to create outdoor spaces that are as durable as they are visually stunning. Each material is carefully selected to complement your design and withstand the harsh Canadian climate.
Our process is designed to minimize disruption and maximize results. From the first consultation to the final walkthrough, Precision Landscaping ensures a smooth, stress-free experience.
We begin with an in-depth consultation and site assessment. Our team analyzes your site's opportunities and challenges while discussing your vision, style, and project goals.
Our designers create detailed 2D and 3D renderings using advanced software. We integrate architectural and engineering expertise to ensure your project is both visually appealing and structurally sound.
We manage the entire permitting process, ensuring your project complies with local regulations and conservation authority standards. Our team works closely with contractors and engineers to coordinate every detail.
Our skilled craftsmen and engineers execute every aspect of the construction process with precision and care—ensuring that your project meets the highest standards of quality, functionality, and design.
SERVICE AREAS
Planning a custom outdoor space often raises many questions. From understanding the role of architectural design in landscaping to knowing how long a project might take, we're here to provide clarity. Below are answers to some of the most common questions to help guide you through the process and ensure your project is a success.
Precision Landscaping's Architectural Design & Engineering services are for clients seeking bold, custom solutions that stand the test of time. Whether you're planning a luxury residential retreat or a commercial development, we'll bring your vision to life.
Contact us today for a consultation and take the first step toward creating your dream outdoor space.
LET'S BUILD YOUR
Ready to transform your outdoor space? Whether you are looking for a stunning new landscape, a custom pool or outdoor construction, our team is here to help. Fill out the form below, and one of our landscaping specialists will be in touch to schedule your free consultation!
TIMELESS DESIGNS
GLENGROVE
MACAMO
REDELMEIER
ROSELAWN
GLENGROVE
MACAMO
REDELMEIER
ROSELAWN
TESTIMONIALS

